„Buildings are always being transformed. Every building is several buildings over time.“
— Stewart Brand
Assemble Dissemble Ensemble
Konstruktives Projekt, 5. Semester BA
Wintersemester 2024/25
Wissenschaftliche Mitarbeit: Kyra Mootz, Ruben Beilby, Lina Thürer
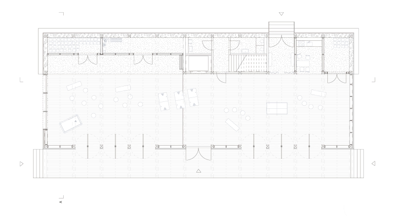
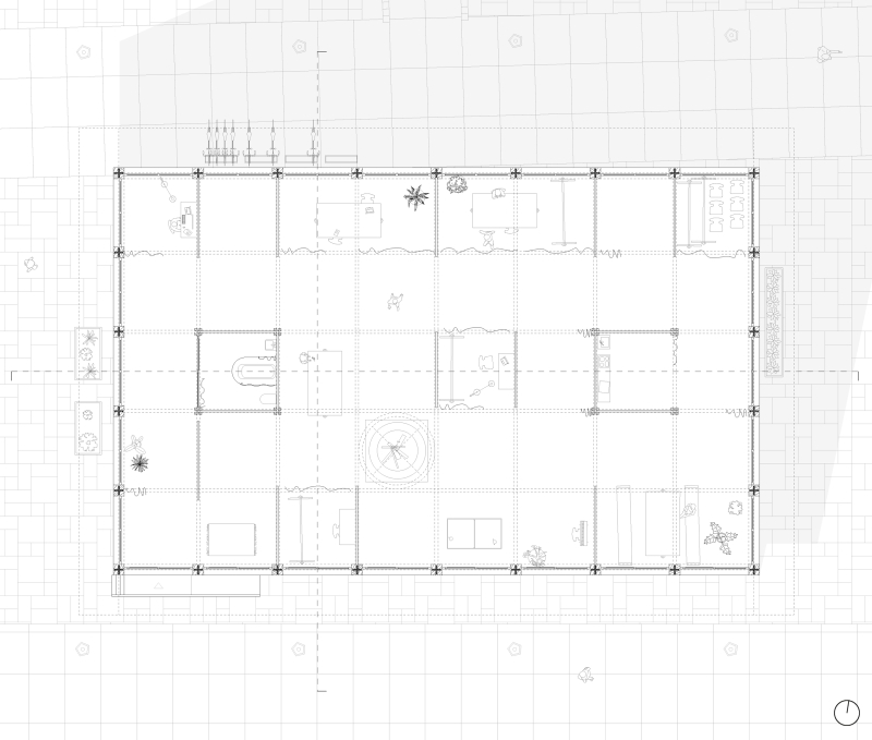
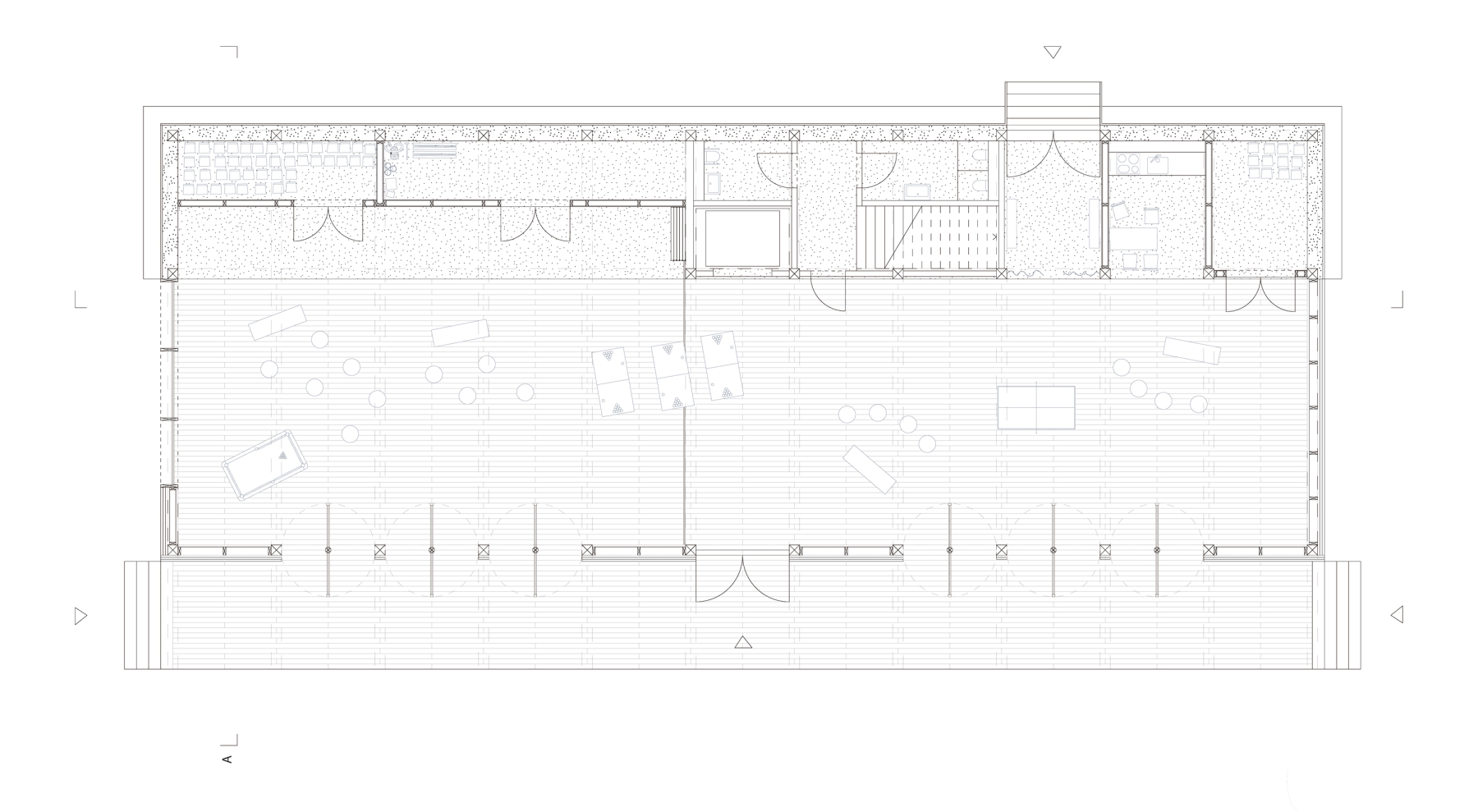
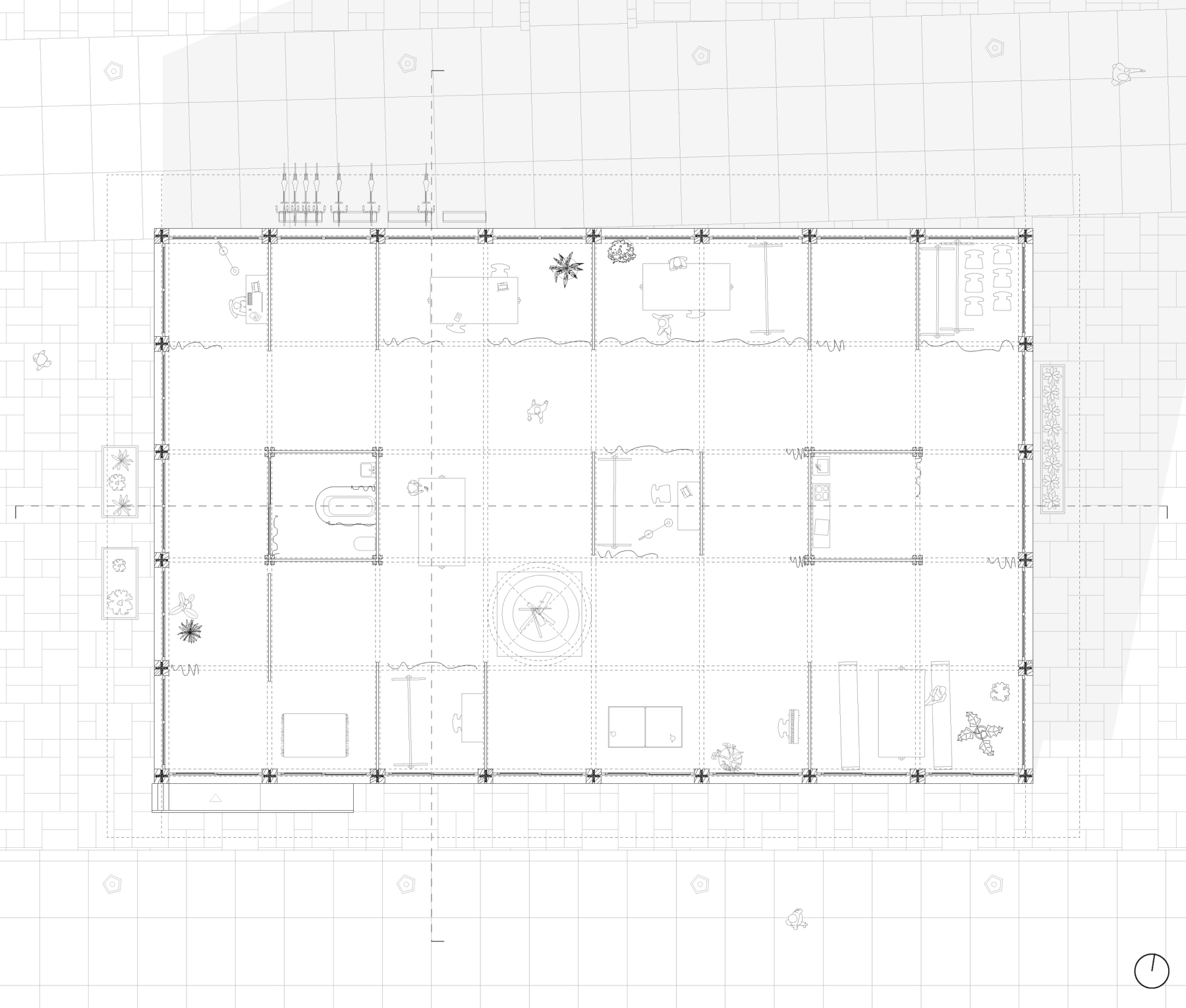
Auf der Suche nach einem angemessenen architektonischen Ausdruck innerhalb der Bauwende, orientieren wir uns zunächst an künstlerischen Arbeitsweisen, um sie anschließend baukonstruktiv in das architektonische Detail zu überführen. Der ursprünglich aus der bildenden Kunst stammende Begriff der Assemblage beschreibt das Fügen dreidimensionaler Objekte zu einem Kunstwerk. Mit dem architektonischen Entwurf als Form künstlerischen Ausdrucks behandeln wir auf baukonstruktiver Ebene jenes Fügen von Objekten in Form von Bauteilen bzw. -stoffen. Angesichts zunehmender Ressourcenknappheit und der Klimakrise, gilt es kritischen Bewusstseins über die geplante Lebensdauer hinaus zu planen. In diesem Sinne soll sowohl das Fügen als auch das Lösen im Sinne des Design for Disassembly als eine ganzheitliche Denkfigur den Entwurf durchdringen. Welche Auswirkung hat das Dreiergespann aus Assemble – Dissemble – Ensemble auf den Planungsprozess der Montage und den architektonischen Ausdruck in der Zeit dazwischen?













































