„In gewisser Weise könnte man sagen, dass der Ziegelstein der globalste und zugleich demokratischste Baustoff der Welt ist." - John Lin, 2014
Vokabular Massivbau
Baukonstruktion 2, 2. Semester BA
Sommersemester 2024
Wisschenschaftliche Mitarbeit: Katharina Benjamin, Pia Brückner, Lina Thürer, Jonas Hamberger
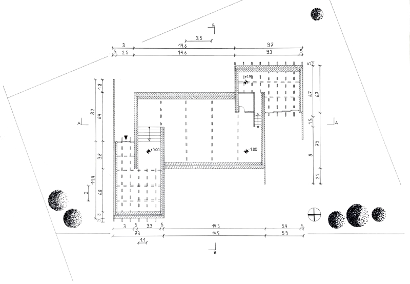
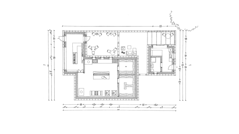
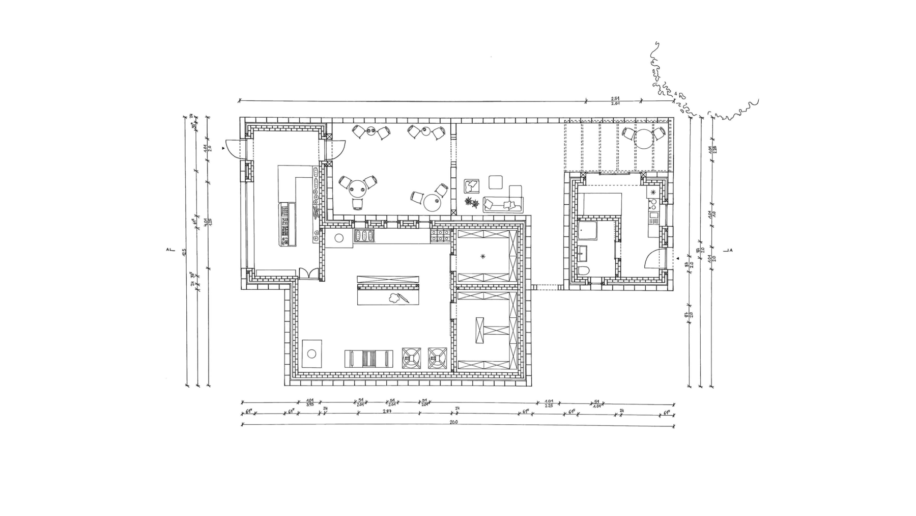
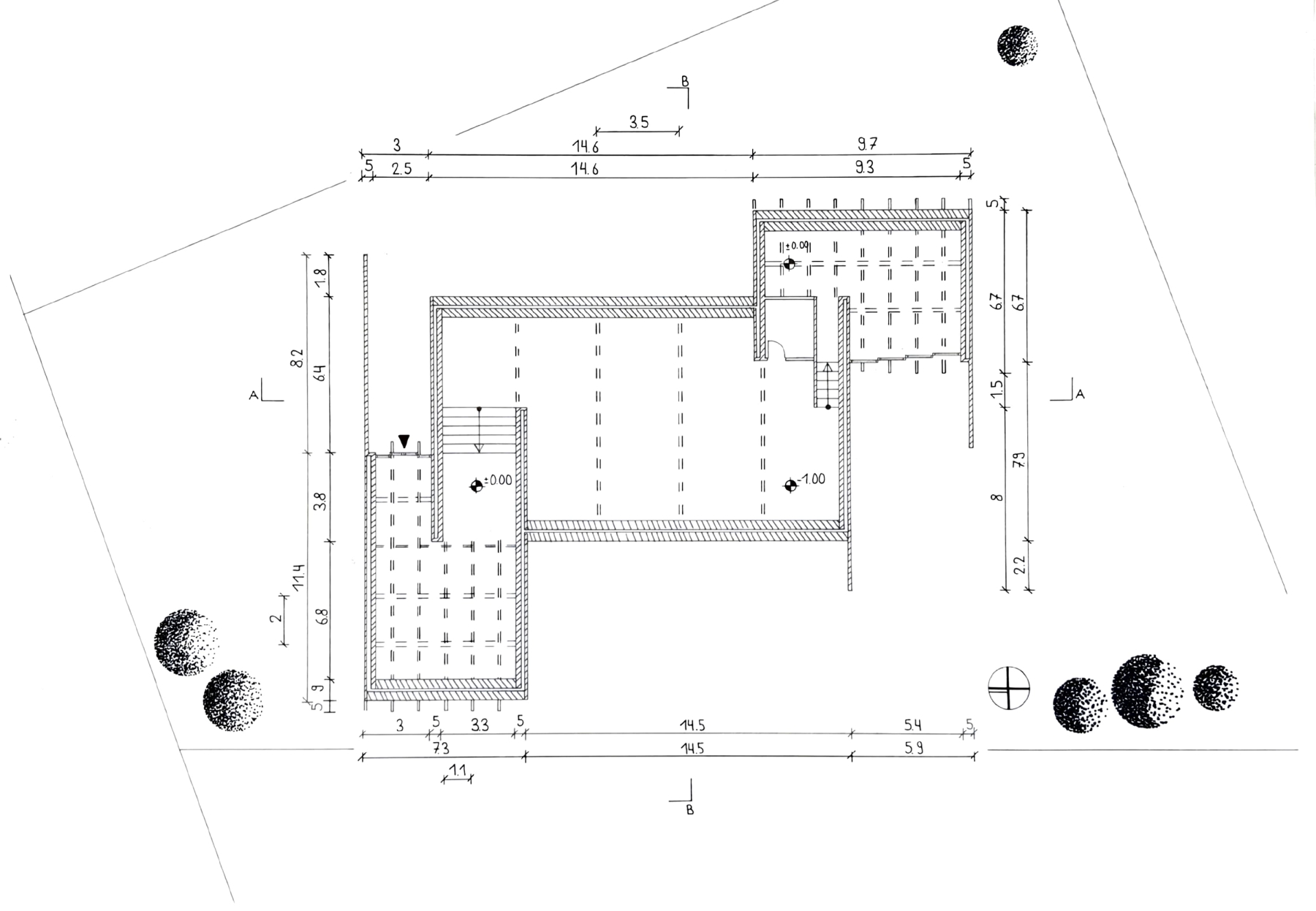
Im zweiten Semester liegt der Schwerpunkt auf der Vermittlung baukonstruktiven Vokabulars, grundlegender architektonischer Begriffe sowie gestalterischer Prinzipien des Massivbaus, wobei die spezifische Bauweise des Mauerwerksbaus im Mittelpunkt steht. Ziegelmauerwerk ist eine der weltweit am meisten verbreitetste Konstruktionsweise, da es mit leicht zugänglichen, kostengünstigen und lokal verfügbaren Materialien gebaut und zeitlos in seiner Flexibiltät ist. Mauerwerksbau bildet die Grundlage sowohl für klassische als auch avantgardistische Architektur und eröffnet den Zugang zu Stilen unterschiedlichster Epochen – von alltäglichen bis hin zu experimentellen Entwürfen. Durch seine Vielseitigkeit fördert diese Bauweise die Teilhabe unterschiedlichster Akteure am Bauprozess und schafft somit Wohnraum für breite Bevölkerungsschichten. Das Semester behandelt die Analyse gebauter Beispiele, die Auseinandersetzung mit dem Material und dessen Fügung sowie die Konzipierung eines eigenen Entwurfs.



















































